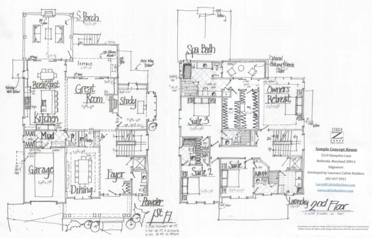
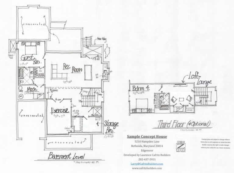
Design your home from scratch with award winning GTM or Studio Z Architects or start from one of our concept plans to be modified to fit your taste and lifestyle. Incredible neighborhood location near the Edgemoor Swim and Tennis Club and just a quick stroll to downtown Bethesda shops, dining, theaters and Metro, and a quick ride to downtown Washington, DC.
This is one of two available design concepts for the lot located at 5210 Hampden Lane. See the other concept here.







