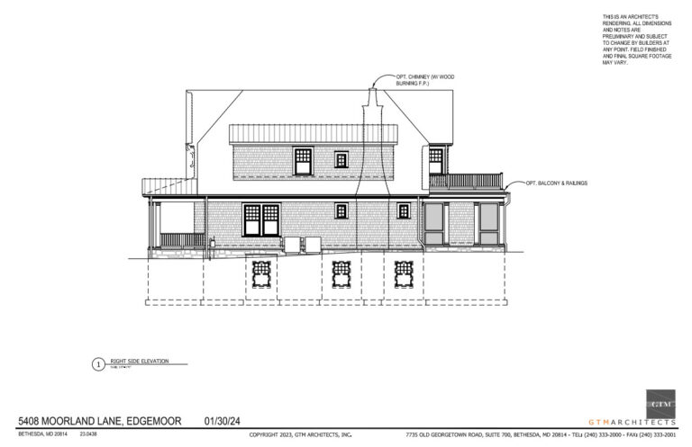
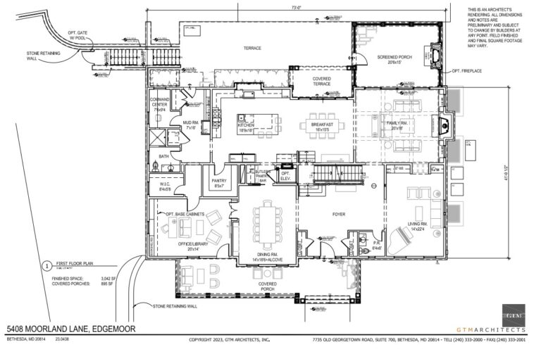
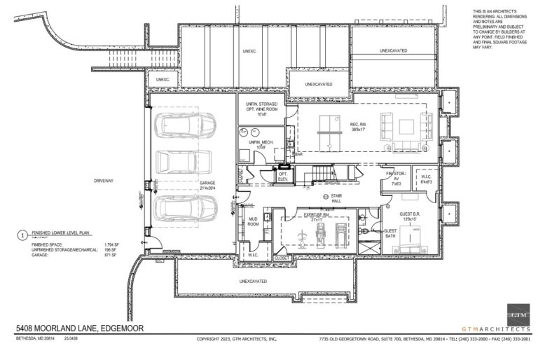
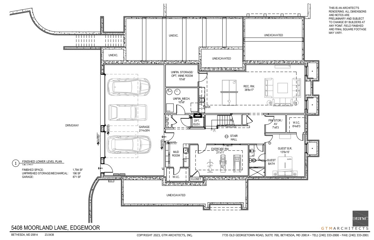
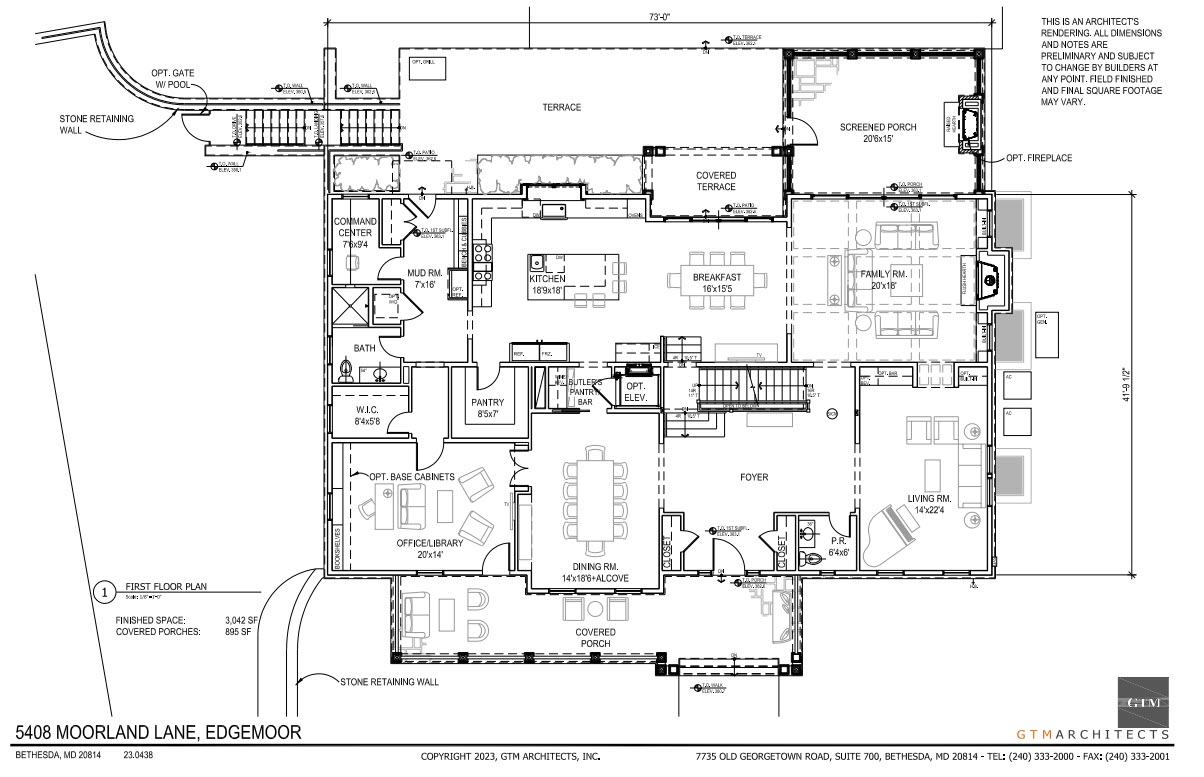
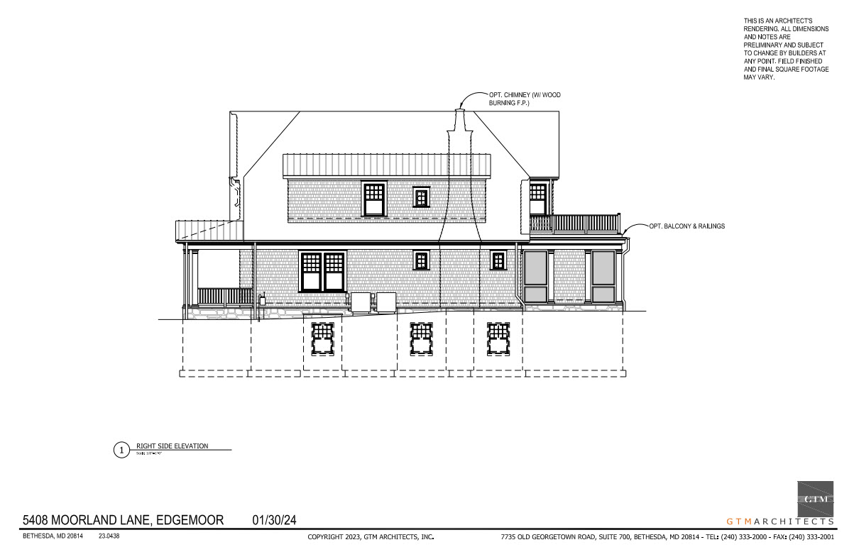
Get ready to enjoy this new Cafritz custom build on this rare, large 18,181 SF lot in the heart of Edgemoor. Three-car integral garage, huge level rear yard with perfect Southern exposure and plenty of room for a pool. Just a short stroll to the Edgemoor Club, metro and downtown shops and restaurants. Designed by GTM Architects.




















































