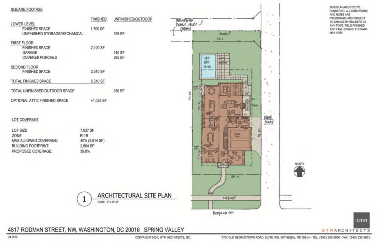
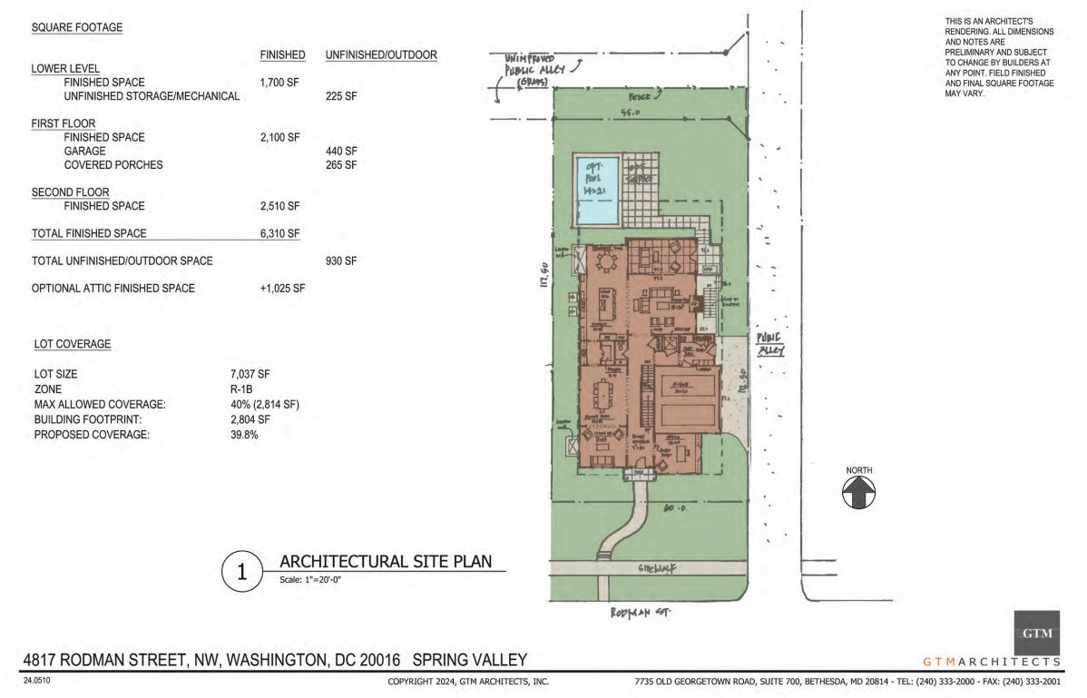
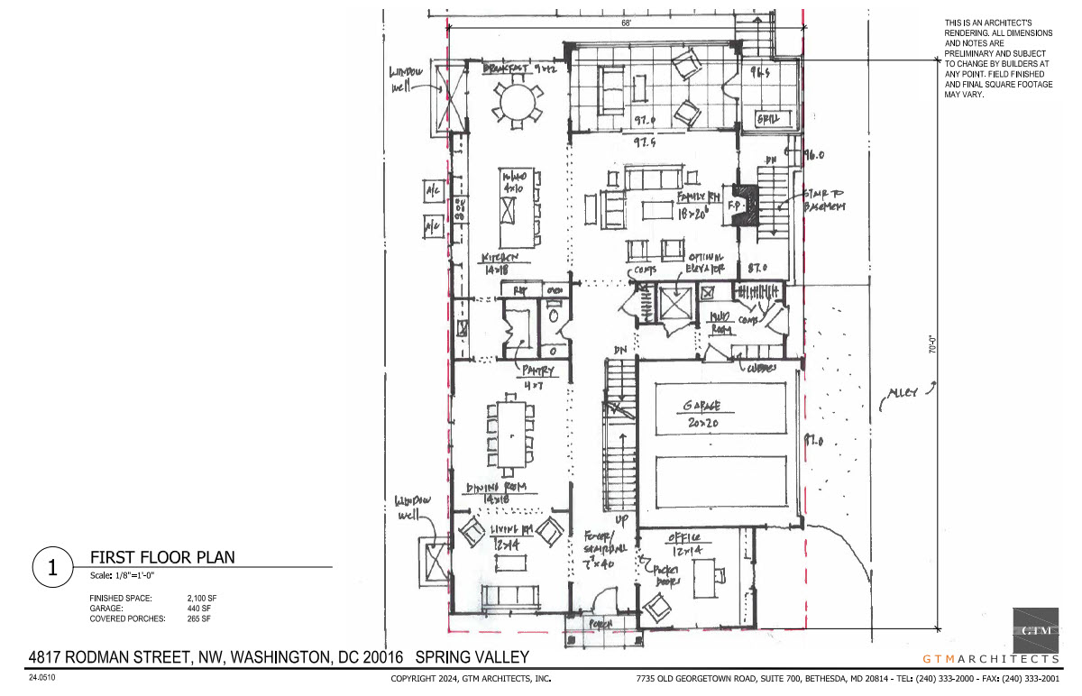
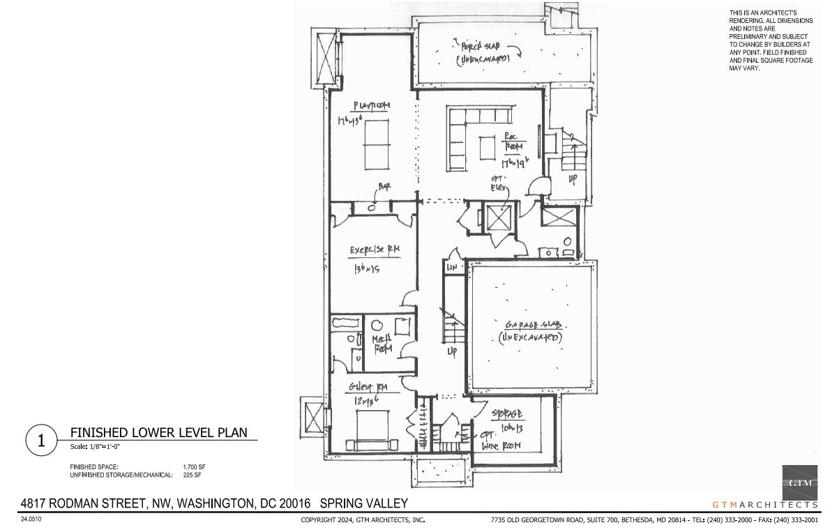
New custom build opportunity, so close to everything, in the heart of DC’s iconic Spring Valley neighborhood! Choose from our concept plans or design your custom home with award winning GTM Architects and build with us on this large, premium, flat lot on this gorgeous quiet street just a short stroll to shops and restaurants and a quick jaunt to downtown DC!









