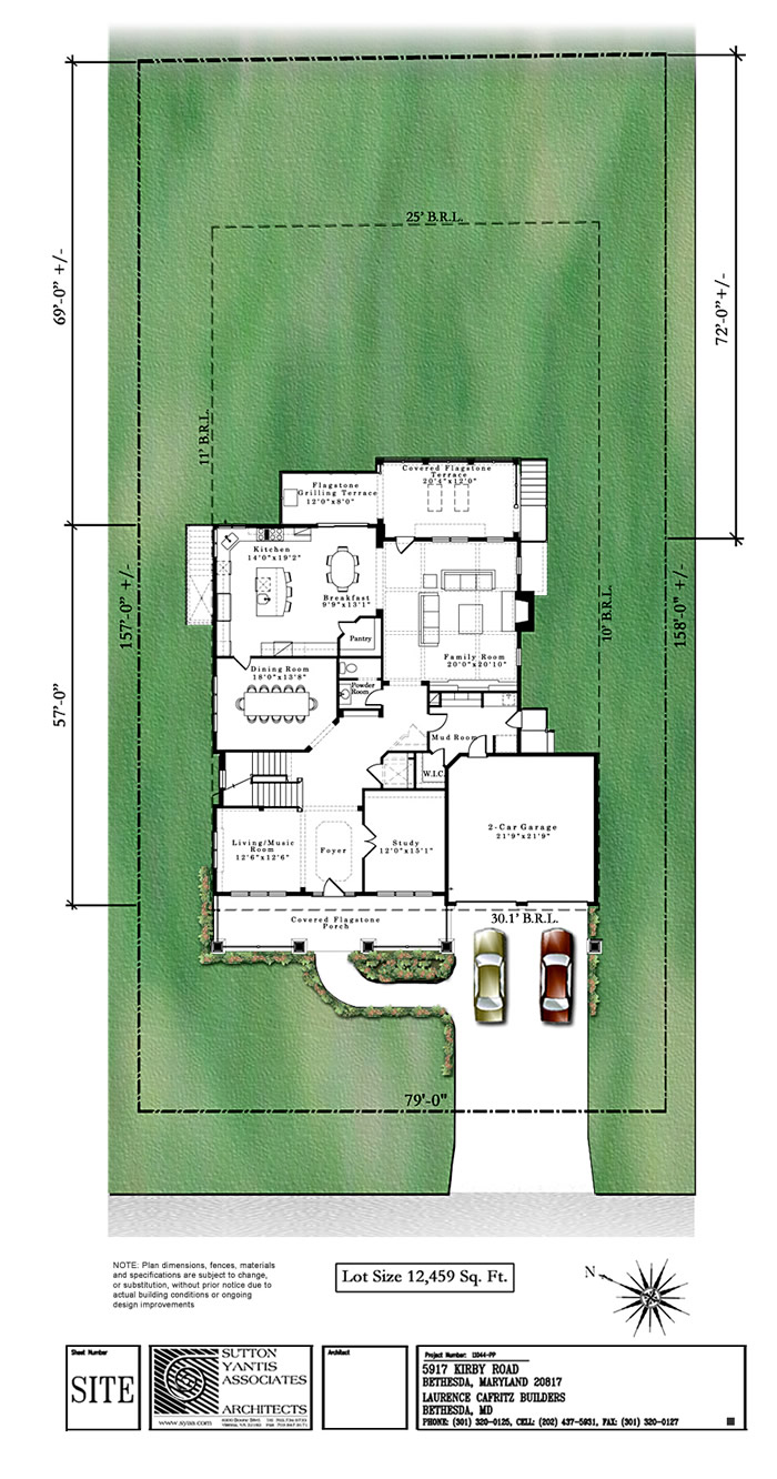
New home on premium 12,459 square foot level lot on quiet street in an incredible neighborhood. Superb Bethesda location with easy downtown access on highly sought-after Walt Whitman school district.
Custom designed by award-winning Sutton-Yantis Architects, and crafted by award-winning Laurence Cafritz Builders.
Detailed specifications with standard fixtures and model numbers available upon request (upgrades available).





