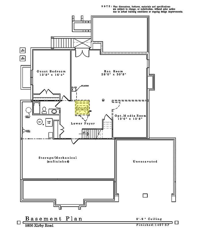
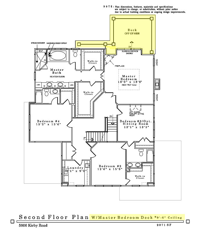
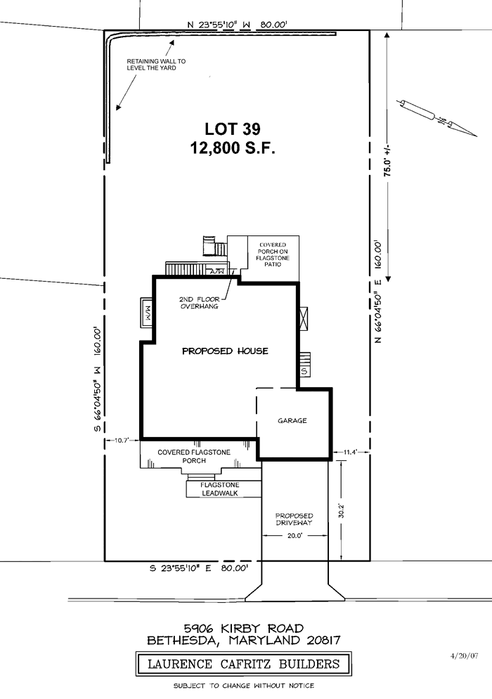
This exceptional home of distinctive quality is built on premium level lot of 12,800 square feet on quiet street lined with cherry blossoms. Featuring 6,605 finished square feet with six bedrooms and five and a half bathrooms.
Custom Designed By Award-Winning Sutton-Yantis Architects
Crafted By Award-Winning Laurence Cafritz Builders


















