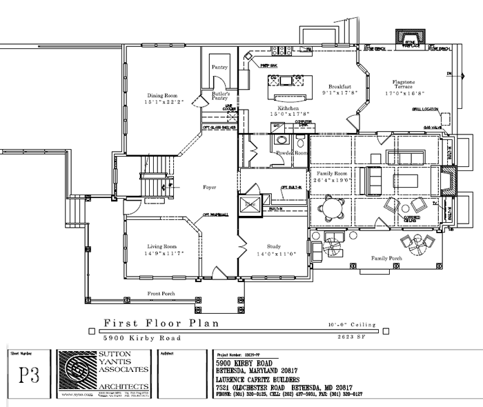
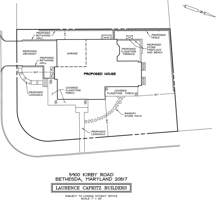
This new six bedroom, five and a half bath home was completed by award-winning Laurence Cafritz Builders. It sits on a 10,977 square foot level lot on a beautiful, quiet street lined with cherry blossoms in close-in Bethesda.
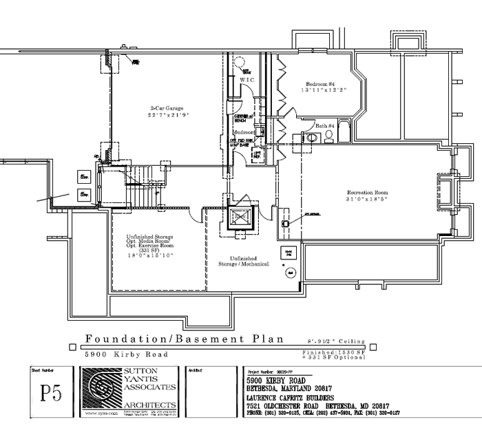
It features 10-foot high ceilings, distinctive moldings and built-ins, thick eight-foot solid doors, Chef’s kitchen with two Meile dishwashers, Sub-Zero refrigerator, Wolf rangetop with sealed burners, Thermador warming drawer, wine cooler, natural stone and glass mosaic tiles, master bathroom steam shower, heated floor, Toto toilets, master bedroom roof deck, flagstone terrace with outdoor stone fireplace, ceiling speakers in the family room, iPod docking station, tumbled paver driveway, mud room with cubbies, elevator and much more!























