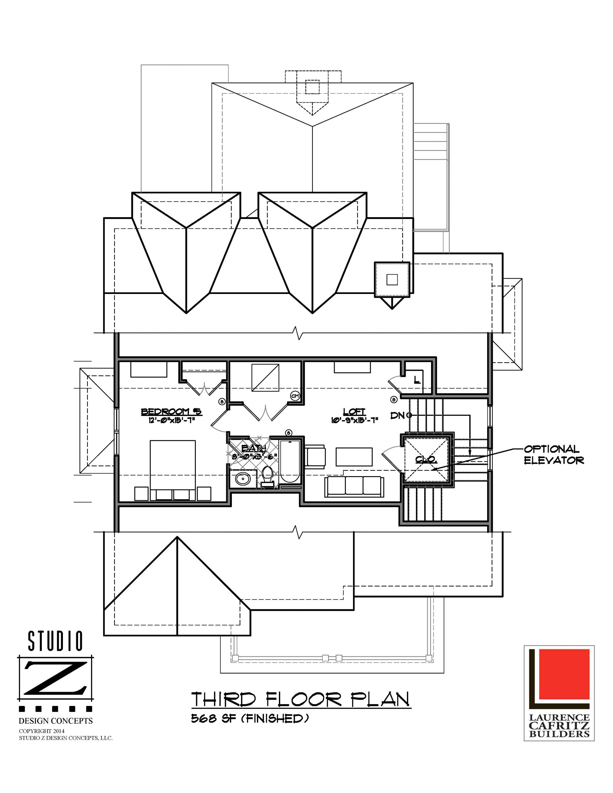
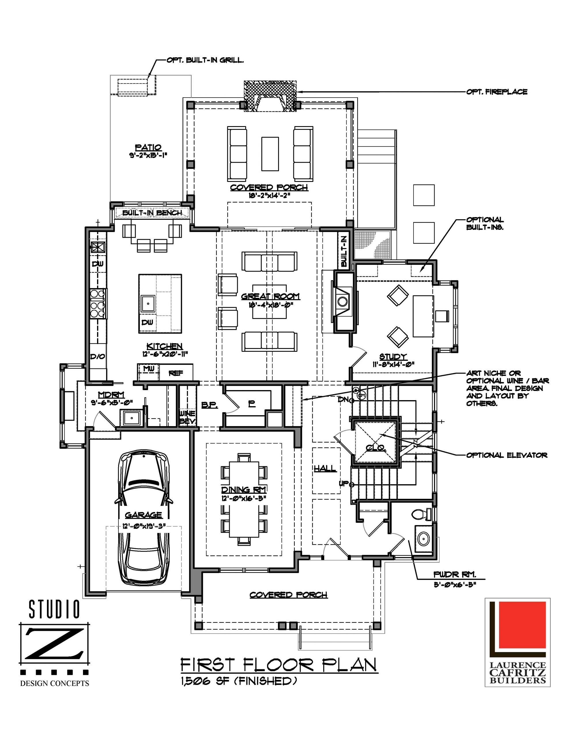
In the heart of Downtown Bethesda, just one block from the fine shops and dining of Bethesda Row, this new 6BR, 6.5BA, 5040 SF home finished on all four levels is to be finely crafted on this 5700 SF level lot with perfect rear southern exposure in this peaceful urban setting.




































